ODvinsk » Фото Приколы » Современное общежитие в китайской провинции Гуандун

 

Современное общежитие в китайской провинции Гуандун

Автор: doseng.org от 5-12-2017, 23:30, посмотрело: 1

0
Дух коллективизма был основным стимулом современной модернизации в Китае. Текущее состояние общества с его разобщённостью и индивидуализацией, вызванными масштабной, стремительной урбанизацией, казалось, ослабило прежнюю идеологию.



Возведение нового общежития от O-office Architects для персонала Исследовательского центра индустриализации строительства компании Vanke стало для архитекторов уникальной возможностью подойти к вопросу новых социальных форм жизни. Площадка в юго-восточной части территории центра граничит с областями, развившимися из бывших деревень в примитивную городскую структуру.

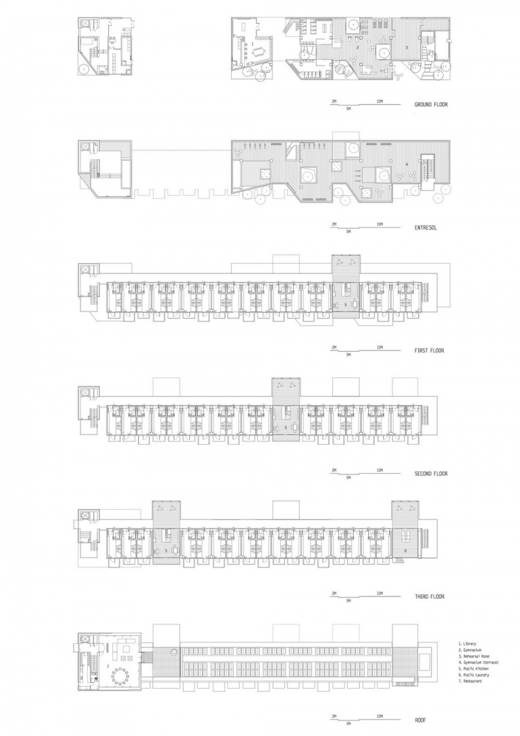
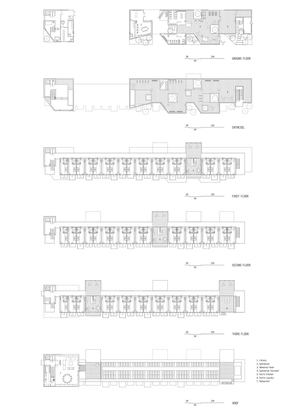
Главной дизайнерской задачей стало строительство общежития для 155 сотрудников, от охраны до технических специалистов, работающих в центре. Одним из основных решений было применение системы железобетонных каркасов, а также ряда инновационных строительных экотехнологий.

Завершённое здание состоит из пяти этажей с тремя видами комнат: одноместный, двухместный и четырёхместный номера. Южный фасад трёхэтажного крыла с названием Habita предусматривает отдельный балкон для каждой единицы жилья, а пять больших стальных блоков для общественных помещений подвешены на разных уровнях северного фасада с видом на Исследовательский центр. Объекты общего назначения, такие как тренажёрный зал и библиотека, сформированы в L-образный объём Mount, поднимающийся от земли до столовой на самой вершине. Гора — это не только метафора, а настоящая скалолазная стена в сочетании с озеленённой поверхностью прямо на восточном фасаде. Небольшое возвышение из бетонных блоков вырастает из ландшафта и создаёт импровизированные подмостки под открытым небом. Лестницы, лифты, коридоры и мосты связывают здание вертикальной сетью.

Коллективизм здесь становится ярким и спонтанным содружеством, инициированным социальной и архитектурной концепциями.



















Категория: Фото Приколы

Уважаемый посетитель, Вы зашли на сайт как незарегистрированный пользователь.
Мы рекомендуем Вам зарегистрироваться либо войти на сайт под своим именем.

Добавление комментария

Имя:*
E-Mail:
Комментарий:
Введите код: *
Кликните на изображение чтобы обновить код, если он неразборчив